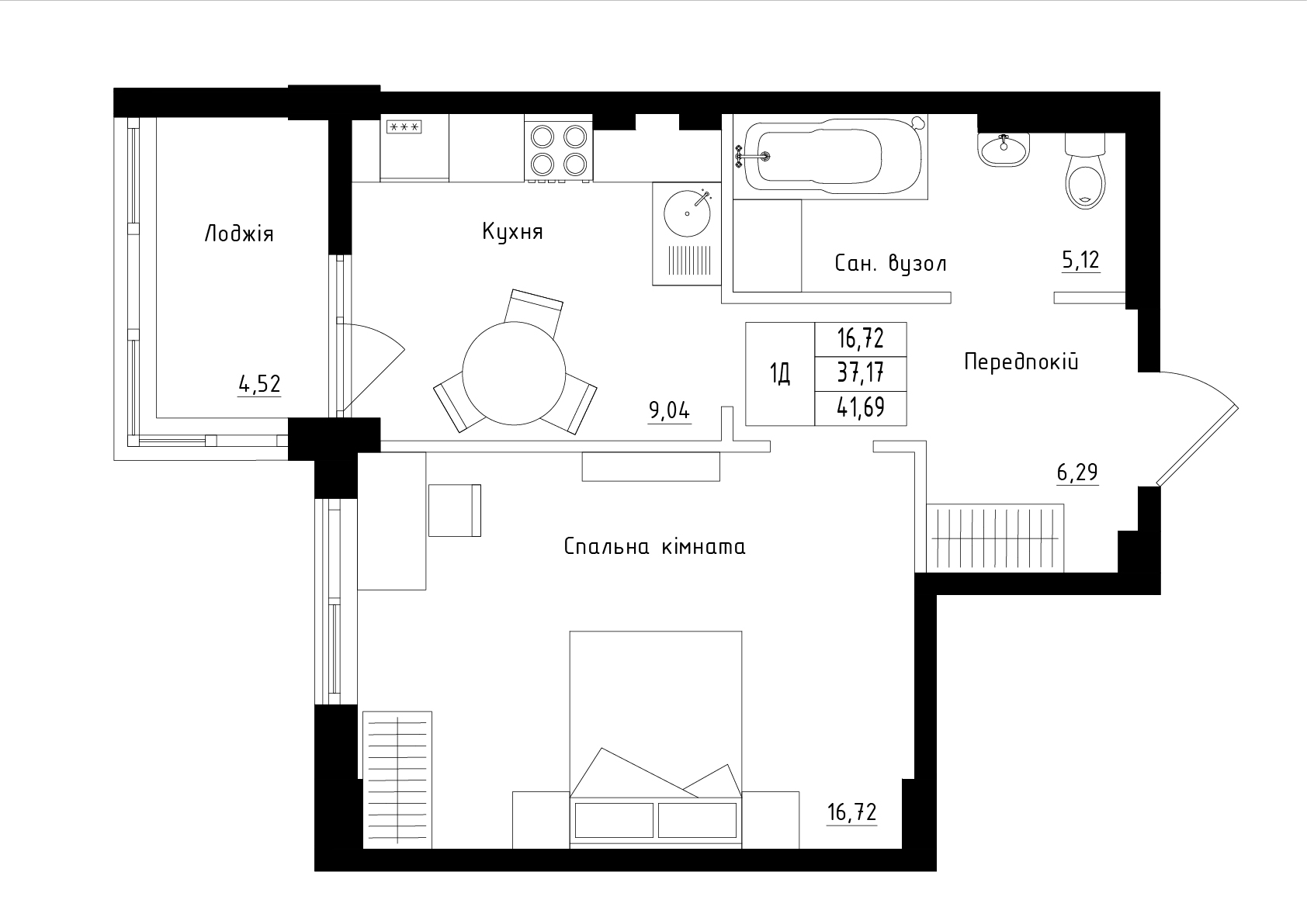
Головна / Квартири / ЖК Приморські Сади, секція 5, Квартира 1Д ЖК Приморські Сади, секція 5, Квартира 1Д 41,69 кв.м. Вільно Інформація про нерухомість Адреса вул. Марсельська 33/2 Житловий комплекс ЖК “Приморські Сади” Секція 5 Площа 41,69 кв.м. Код планування 1Д Надіслати заявку